Direccion

Av Libertador San Martin nro. 35 - Mar de Ajó

Telefono

(02257) 15-58-4298 / (02257) 54-8043

Whatsapp

2257548043

Volver

Volver al listado

Oportunidad

PH 4 AMB. UF 1 POPEYE XVI

direccion Salta 410, Mar De Ajó destacada Propiedad destacada

Venta

USD 103.000

Características
tipo Ph
ambiente 4 ambientes
dormitorio 3 dormitorios
baños 1 baño
toilet 1 toilette
patio Con patio
cochera cochera
parrilla Con parrilla
superficie 1 piso
antiguedad Antigüedad: En construcción
codigo Código 1326
Acerca de la propiedad

EMPRENDIMIENTO EN PH  " POPEYE XVI"  UBICADO EN LA CALLE  SALTA 410, ENTRE DANIEL RIAL Y CANDIOTTI,  MAR DE AJÓ (BARRIO SAN RAFAEL), PARTIDO DE LA COSTA. PROVINCIA DE BUENOS AIRES.

En una de las exclusivas localidades residenciales del Partido de La Costa. Se encuentra este nuevo proyecto con estilo moderno y vanguardista.
Esta cuidad balnearia donde conjuga hermosas playas con espacios arbolados y lugares muy tranquilos para residir, se destaca este proyecto con solo 2 unidades de vivienda multifamiliar implantadas en el terreno, cabe aclarar que también hay lugares en comunes a todas las propiedades como así también espacios exclusivos de cada unidad, la construcción del edificio es de calidad y está construido con experiencia y técnicas aprobadas. Los materiales son funcionales a su uso y necesidad, los cuales figuran en los planos orientativos e ilustrativos de la fachada. 

 
2 MAGNIFICOS INMUEBLES
UNIDADES EXCLUSIVAS
CON TODOS LOS SERVICIOS: GAS NATURAL INSTALADO
MATERIALES DE 1RA. LINEA


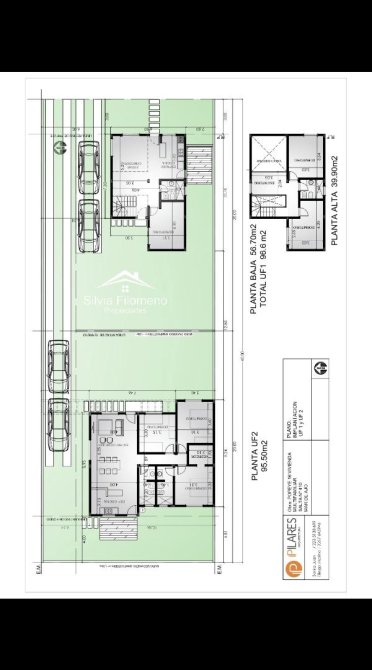
ÚLTIMA UNIDAD FUNCIONAL  DISPONIBLE:

UF1 DE 96 MTS2  QUE CUENTA CON: 

  • P.B 1 DORMITORIO
  • BAÑO
  • COCINA
  •  ESTAR- COMEDOR
  • P.A 2 DORMITORIOS
  • ESCRITORIO
  • BAÑO 
  • GUARDACOCHE
  •  PATIO
 
  • TODOS LOS SERVICIOS
  • GAS NATURAL INSTALADO
  • BARRIO RESIDENCIAL SAN RAFAEL 
  • A 100 MTS DE AV. TUCUMÁN
  • A150 MTS DE LA PLAZA DE LOS PIONEROS
  • A 400 MTS DE AV. LIBERTADOR SAN MARTÍN 
  • A 300 MTS DE CANCHA DE PADDLE (TECHADA)
  • A 700 MTS DEL MAR 

IDEAL PARA VIVIENDA PERMANENTE !! 

VALOR: US$ 103.000


Información de contacto:

            Filomeno Propiedades
 Teléfono: 2257584298 Silvia Filomeno
 Correo electrónico: silviafilomeno1@hotmail.com
 Dirección: Av. Libertador San Martin 29/35. Mar de Ajo, partido de la costa. Pcia. Bs. As.

Visite nuestro sitio web: 

www.silviafilomeno.com.ar

Youtube: www.youtube.com/@silviafilomenopropiedades9634

Facebook: www.facebook.com/filomenosilvia/

Instagram: https://www.instagram.com/filomenopropiedades/

Tik Tok: https://www.tiktok.com/@filomenopropiedades




 

Ubicación
Consultar por propiedad
Ph 4 Amb. Uf 1 Popeye Xvi
Venta
USD 103.000

Comunicate con nosotros

error

error

error

error


Propiedades relacionadas
Chatea con nosotros situacion
contacto No dudes en contactarte con nosotros contacto
Whatsapp WHATSAPP telefono LLAMAR
Comunicate con nosotros

error

error

error

error